Find property

Villa in Madain Tower, 4 436 ft², №77809

About apartment
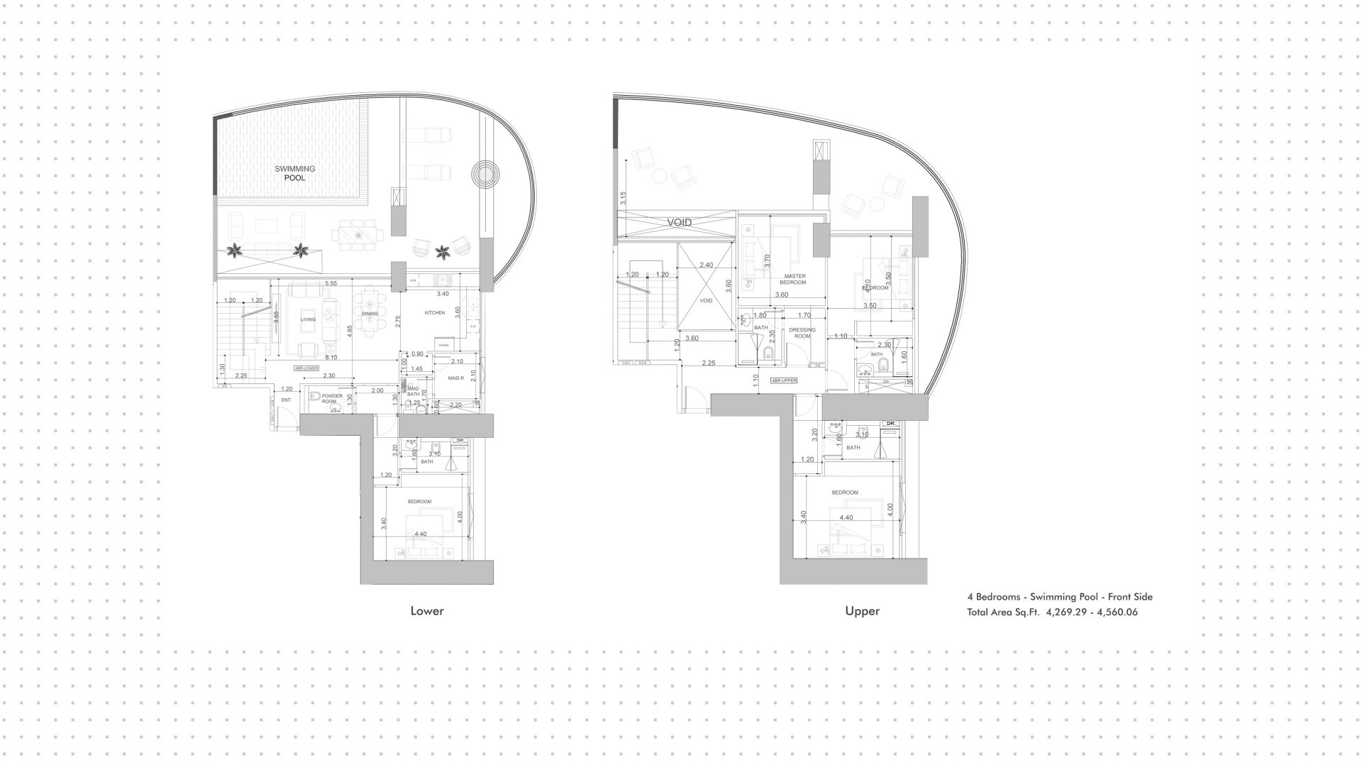
An apartment with 4 bedrooms in the complex Madain Tower. The apartment with an area of 4 436 ft² is located on the 39 of 62, finished. Windows: panoramic. View from the windows: front (sea view). Delivery of the project is scheduled for the 4st st quarter of 2027.
Dubai Marina, Al Naseem St
Hammersmith & City line

4 bedrooms

39 floor |

4 436 ft²

15 340 000 AED
3 457 AED per ft²
Make an appointment
expert
Eldar
Real estate expert
+971 (4) 563-5256
Madain Tower
Madain Tower is a 62-storey residential complex in the Dubai Marina area, close to the famous Dubai Marina Walk and Dubai Harbour
Exterior
Christie's International Real Estate has successfully marketed high-value real estate around the world for more than 30 years.
1/9
The brochure of Villa, 4 436 ft² in Madain Tower for living and investing
15 new developments priced from 899 000 AED
Downloading time: 6 seconds PDF 13 MB Uploaded 15 November
mockup
More apartments with similar
price
price
area
Leave a request if you want to visit
15 new developments priced from 899 000 AED
mockup
reward reward reward
Tour around the apartment
The brochure of Villa, 4 436 ft² in Madain Tower for living and investing
15 new developments priced from 899 000 AED
Downloading time: 6 seconds PDF 13 MB Uploaded 15 November
mockup